Baugebiet "Auf dem Kamp", Stadtteil Arsbeck
Baugebiet „Auf dem Kamp III" im Stadtteil Arsbeck
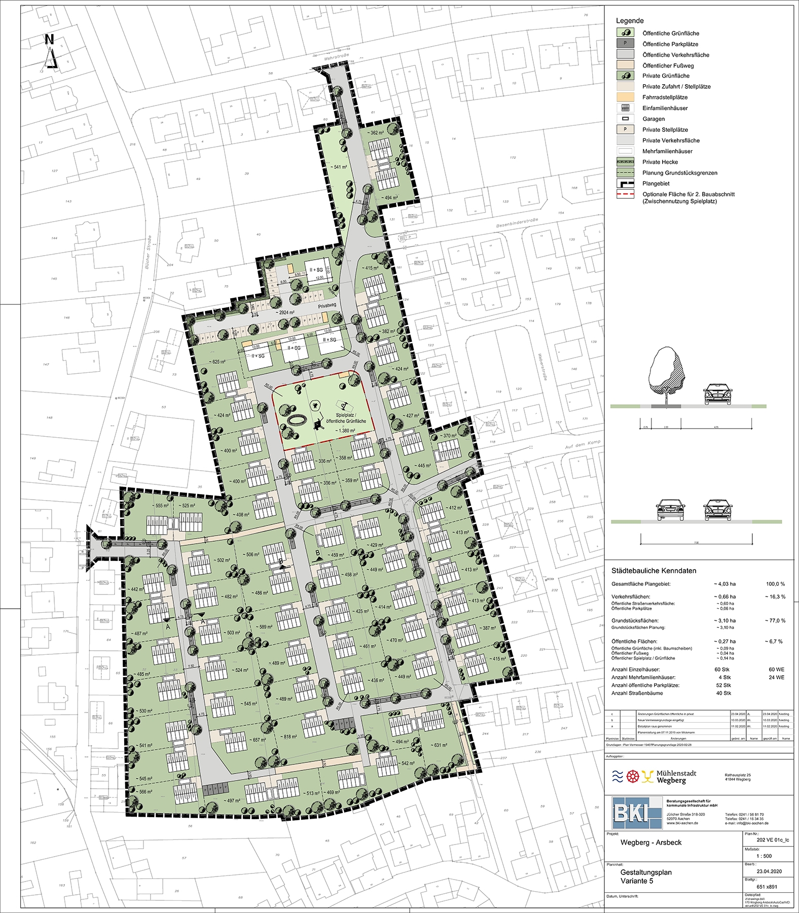
Aktuell vermarktet die SEWG mbH das Baugebiet „Auf dem Kamp III“.
Größe: ca. 31.000 m²
Baugrundstücke: ca. 60
Grundstücksgrößen: zwischen 365 und ca. 820 qm
Bebauung: Ein- und Zweifamilienhäuser sowie 4 Mehrfamilienhäuser
Erschließung: 2022
Alle Grundstückseigentümer können auf Wunsch einen Glasfaser Breitbandanschluss erhalten.
_____________________________________________________________________________________________________
Auf 31.000 m² entstehen hier rund 60 Grundstücke für Ein- und Zweifamilienhäuser. Die einzelnen Grundstücksgrößen variieren zwischen 365 und 818 m². Darüber hinaus werden vier Mehrfamilienhäuser in diesem Gebiet entstehen.
Der Ortsteil Arsbeck bietet neben Einkaufsmöglichkeiten, Grundschule, Kindergärten, einer freiwilligen Feuerwehr, ein vielfältiges und buntes Vereinsleben sowie eine gelebte Ortsgemeinschaft. Der Anschluss des Neubaugebietes an eine leistungsfähige Breitbandversorgung ist in Planung.
Ab sofort haben Sie die Möglichkeit einen Antrag auf Erwerb eines Baugrundstücks im Baugebiet Arsbeck, Auf dem Kamp, 3. Bauabschnitt einzureichen.
Sofern Sie ein Baugrundstück erwerben möchten, senden Sie uns bitte den entsprechenden Antrag vollständig ausgefüllt und unterschrieben per E-Mail an wohnbau@wegberg.nrw oder per Post an die Stadt Wegberg.
Bitte haben Sie Verständnis dafür, dass wir aktuell noch keine konkreten Wünsche zur Lage der Baugrundstücke entgegennehmen können. Sobald alle finalen Vermessungen abgeschlossen sind, wird es selbstverständlich die Möglichkeit geben, konkrete Wünsche zu äußern.
Nähere Einzelheiten zu den allgemeinen Vertragsbedingungen entnehmen Sie bitte dem Antrag sowie den beigefügten Informationen, die wir Ihnen gerne zusenden.
Die Bauplatzvergabe erfolgt nach aufgestellten Vergabekriterien. Alle fristgerecht eingegangenen Anträge werden für die Vergabe berücksichtigt.
Sie können sich jetzt für ihr Traumgrundstück bewerben.
Entwurfsplanung mit ca. Grundtsücksgrössen Zu den Konditionen
Antrag Auf Erwerb eines Grundstücks
Aktueller Verkaufsstand August 2025 - Das Grundtsück Nr. 39 steht noch zum Verkauf

