Erweiterung des Gewerbegebietes in Rath-Anhoven
Die Stadt Wegberg erweitert derzeit mit Mitteln aus dem Regionalen Wirtschaftsförderungsprogramm des Landes Nordrhein-Westfalen (RWP NRW Infrastrukturrichtlinie vom 01.01.2022) das Gewerbegebiet in Rath-Anhoven. Ziel ist die Ansiedlung von Wegberger Bestandsunternehmen, Neuansiedlungen und Neugründungen unter Beachtung ökologischer Aspekte.
„Ihr Unternehmen steht für Nachhaltigkeit, zukunftsorientierte Maßnahmen und hochwertige Arbeitsplätze? Dann lassen Sie uns eine Möglichkeit schaffen, Ihr Unternehmen zu stärken!“ Christian Pape, Bürgermeister.

Informationen (zusammengefasst)
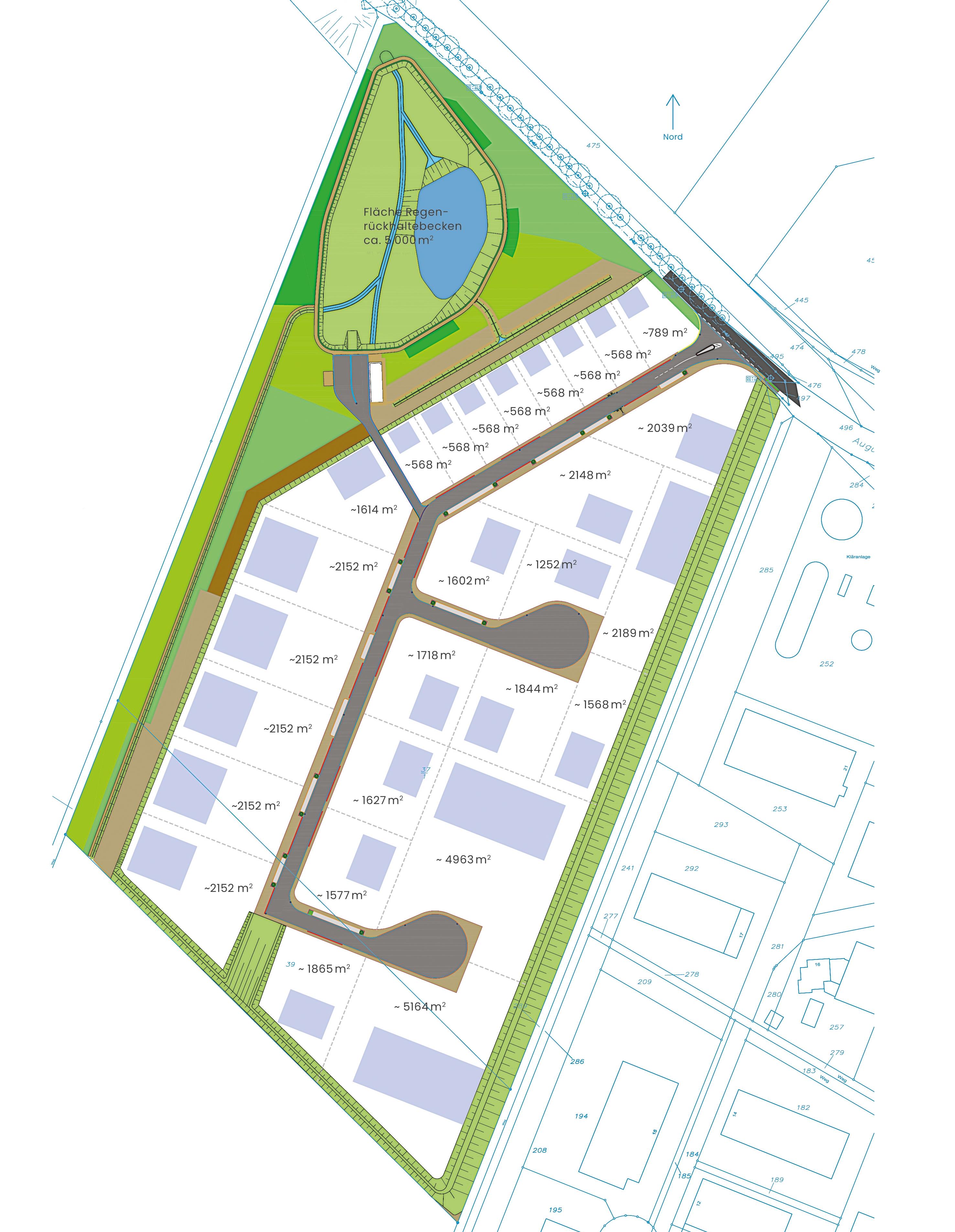
Flächengröße: 47.304 m²
Grundstücksgrößen von 560 m² - 5.160 m²
Kleinere und mittlere Gewerbeansiedlungen
Veräußerung im Rahmen einer Punktevergabe
Förderkonformer (Positiv-Liste) und planungsrechtlich zulässiger Branchenmix
Kaufpreis: nur 50,-€/m²
Das Gewerbegebiet liegt direkt an der B57. Hieraus ergibt sich eine optimale logistische Anbindung über die Autobahnen A46 und A61 an die Ballungszentren Mönchengladbach, Neuss, Düsseldorf, Köln und Aachen. Auch die Nachbarn in den Niederlanden und Belgien können schnell angesteuert werden.
Vergabestart: Ab dem 01.05.2025 können Bewerbungen eingereicht werden.
Bewerbungsfrist: Bis zum 15.07.2025 haben Unternehmen Zeit, ihre Unterlagen vorzulegen.
Bei Interesse an einem Gewerbegrundstück, senden Sie uns bitte Ihre vollständigen Bewerbungsunterlagen per E-Mail an liegenschaften@stadt.wegberg.de oder per Post an die Stadt Wegberg (Liegenschaftsabteilung).
Bewerbungsunterlagen:
- vollständig ausgefüllter Bewerbungsbogen
- Finanz-/Businessplan mit Ertrags- und Liquiditätsplanung für 3 Jahre, Investitionsplan und Stellenplan
- Bonitätsnachweis
- Konzept zur Darstellung der Nachhaltigkeit
Das Verkaufsprospekt können Sie hier downloaden.


